
※土地の大きさ 間口14M 奥行き14.2M
※接道 東道路
※用途地域 第一種中高層住居専用地域
壁面後退
※階数 3階建て
※建物の規模 60坪程度
※必要な部屋
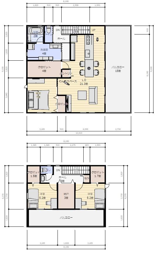
建物は3階建て60坪ぐらいを希望しており、
完全分離型の二世帯住宅を検討しています。
1階は親世帯で玄関、
シューズクローク、水回り、
LDK(15畳ほど)、
寝室2部屋(6畳ほど)、納戸(3畳ほど)
2.3階は子世帯で1階に玄関とシューズクローク
2階に水回り、ファミリークローゼット(4畳ほど)、
LDK(20畳ほど)、寝室1部屋(6畳ほど)、
できればベランダ(奥行きがあるもの)
3階に子供部屋2部屋(5畳ほど)、
納戸(3畳ほど)、トイレ
間取の要望
【共通】
日当たりの良い南側にリビングダイニングが欲しい。
収納が多めに欲しい。
キッチンはペニンシュラ型でカップボードも欲しい。(対面)
玄関は少し広めが良い。
廊下は少なめにしたい。
駐車場は3台。
【親世帯】
洗面、脱衣所は少し広めにしたい。
(タオルなど収納したい)
お風呂は1坪程度
1部屋寝室にウォークインクローゼットが欲しい。
(もう1部屋は普通の収納で可)
【子世帯】
シューズクロークはコートやベビーカー、
ゴルフバッグなども置きたい。
キッチン横にダイニングテーブルを置きたい。
キッチン横にパントリーが欲しい。
(あまり大きくなくて良い)
テレビは壁掛けにしたい。
リビングを通る階段の場所が良い。
水回り(お風呂、脱衣所、ランドリー、洗面、トイレ)
はまとめたく、キッチンから行きやすい場所が良い。
ファミクロもランドリーから近い場所が嬉しい。
ランドリースペースには乾太くん、
洗濯機、服を干すアイアンバーなどつけたい。
2階のベランダは子供のプールなど
できるくらいの広さが欲しい。
犬がいるので、犬スペースがあると嬉しい。
※家族構成
家族は合計6人+犬2匹。祖父母2人、
夫婦、子供が2人です。